O PROJEKTU
BYTY
CENÍK
GALERIE
PARTNEŘI
KONTAKT
NAŠE PROJEKTY
Žižkova
Vyberte stránku
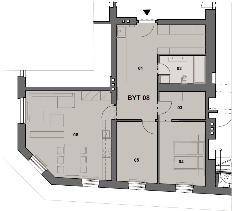
Byt č. 8
Velikost bytu:
3+kk
Obytná plocha:
82,8m²
Podlahová plocha:
87,6m²
Lodžie:
-m²
Parkovací stání:
Ano
Sklepní kóje:
Ne
Světová orientace:
-
Cena včetně DPH:
8.322.000 Kč
Stav:
VOLNÝ
Zpět k výpisu bytů
NEZÁVAZNĚ POPTAT
DALŠÍ DOTAZY