O PROJEKTU
BYTY
CENÍK
GALERIE
PARTNEŘI
KONTAKT
NAŠE PROJEKTY
Žižkova
Vyberte stránku
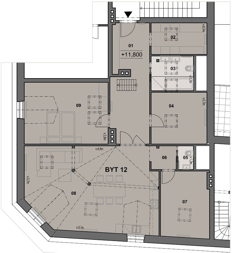
Byt č. 12
Velikost bytu:
4+kk
Obytná plocha:
124,1m²
Podlahová plocha:
132,7m²
Lodžie:
-m²
Parkovací stání:
Ano
Sklepní kóje:
Ne
Světová orientace:
-
Cena včetně DPH:
11.943.000 Kč
Stav:
VOLNÝ
Zpět k výpisu bytů
NEZÁVAZNĚ POPTAT
DALŠÍ DOTAZY